NCC 2022 Volume One - Building Code of Australia Class 2 to 9 buildings
Classification
Building class 1a Building class 1b Building class 2 Building class 3 Building class 4 Building class 5 Building class 6 Building class 7a Building class 7b Building class 8 Building class 9a Building class 9b Building class 9c Building class 10a Building class 10b Building class 10c

Filter

Classification
Building class 1a Building class 1b Building class 2 Building class 3 Building class 4 Building class 5 Building class 6 Building class 7a Building class 7b Building class 8 Building class 9a Building class 9b Building class 9c Building class 10a Building class 10b Building class 10c

D2

Part D2 Provision for escape

Part D2 Provision for escape

Introduction to this Part

This Part contains Deemed-to-Satisfy Provisions for Part D1. It sets out required numbers, dimensions and placement of exits, rules for measuring building occupancy and travel distance to exits, places exits lead to and the use of horizontal exits within a building.

Deemed-to-Satisfy Provisions

(1) Where a Deemed-to-Satisfy Solution is proposed, Performance Requirements D1P1 to D1P6, D1P8 and D1P9 are satisfied by complying with—

  1. D2D2 to D2D23, D3D2 to D3D30 and D4D2 to D4D13; and
  2. in a building containing an atrium, Part G3; and
  3. in a building in an alpine area, Part G4; and
  4. for a building containing an occupiable outdoor area, Part G6; and
  5. for additional requirements for Class 9b buildings, Part I1; and
  6. for public transport buildings, Part I2; and
  7. for farm sheds, Part I3.

(2) Where a Performance Solution is proposed, the relevant Performance Requirements must be determined in accordance with A2G2(3) and A2G4(3) as applicable.

(3) Performance RequirementD1P7 must be complied with if lifts are to be used to assist occupants to evacuate a building.

Notes

There are no Deemed-to-Satisfy Provisions for D1P7 in respect of using lifts to assist occupants to evacuate a building.

To clarify that the requirements of D1P1 to D1P6, D1P8 and D1P9 will be satisfied if compliance is achieved with Parts D2, D3 and D4 in the case of all buildings, Part G3 in the case of buildings with an atrium, Part G4 in the case of buildings in alpine areas, Part G6 in the case of occupiable outdoor areas, Part I1 in the case of theatres, stages and public halls, and Part I2 for public transport buildings; for farm sheds, Part I3.. D1P7 is only required to be complied with if lifts are to be used to assist occupants to evacuate.

Most buildings

Where a solution is proposed to comply with the Deemed-to-Satisfy Provisions, D2D1 clarifies that for most buildings compliance with Parts D2, D3 and D4 will achieve compliance with D1P1 to D1P6D1P8 and D1P9. The exceptions to this general rule are set out below.

Buildings with an atrium

If the building contains an atrium, it must comply with Part G3 in addition to Parts D2, D3 and D4.

Buildings with an occupiable outdoor area

If the building contains an occupiable outdoor area, it must comply with Part G6 in addition to Parts D2, D3 and D4.

Theatres, stages and public halls

A building which comprises a theatre, stage or public hall must comply with Part I1 in addition to Parts D2, D3 and D4.

Atrium and theatre, stage or public hall

If the building contains an atrium and one or more of a theatre, stage or public hall, it must comply with Parts D2, D3, D4, G3 and I1.

Buildings in alpine areas

A building located in an alpine area must comply with Part G4 in addition to Parts D2, D3 and D4.

Public transport buildings

A building associated with public transport services, such as railway stations, bus interchanges, airports and ferry terminals must comply with Part I2 in addition to Parts D2, D3 and D4.

Where a Performance Solution is proposed, the relevant Performance Requirements must be determined in accordance with A2G2(3) and A2G4(3) as applicable. (See commentary on Part A2).

Farm sheds

For farm sheds, Part I3 contains provisions that apply alongside Parts D2, D3 and D4.

The Deemed-to-Satisfy Provisions of this Part do not apply to the internal parts of a sole-occupancy unit in a Class 2 or 3 building or a Class 4 part of a building.

To exempt internal parts of sole-occupancy units in Class 2 and Class 3 buildings and Class 4 parts from the Part D2 Deemed-to-Satisfy Provisions.

The Part D2 Deemed-to-Satisfy Provisions do not apply within a sole-occupancy unit of a Class 2 or Class 3 building and Class 4 parts.

This is because most occupants are familiar with the layout of their unit. The units are small in area compared to sole- occupancy units in other classes of building. They will also have a low level of occupancy and a lower fire load than most commercial and industrial buildings.

Additionally, such units will be separated from the rest of the building by fire-rated construction, or sprinklers will be installed. Except when considering smoke-hazard management matters, the path to the door leading out of sole-occupancy units is not regarded as part of the path of travel to an exit. See Part E2.

(1) All buildings — Every building must have at least one exit from each storey.

(2) Class 2 to 8 buildings —

  1. In addition to any horizontal exit, not less than 2 exits must be provided from the following:
    1. Each storey if the building has an effective height of more than 25 m.
    2. A Class 2 or 3 building subject to C2D6.
  2. The requirements of (a)(i) do not apply to a part of a storey that—
    1. is provided with direct egress to a road or open space; and
    2. satisfies D2D5 by the provision of 1 exit.

SA D2D3 Number of exits required2019: D1.2

Delete subclause D2D3(2) and insert D2D3(2) as follows:

(2) Class 2 to 8 buildings — In addition to any horizontal exit, not less than 2 exits must be provided from the following:

  1. Each storey if the building has an effective height of more than 25 m.
  2. A Class 2 or 3 building subject to C2D6.
  3. A storage shed in a bulk grain storage facility if the distance of travel to an exit is more than 150 m.
  4. The gallery level in a cell type silo in a bulk grain storage facility.

(3) Basements — In addition to any horizontal exit, not less than 2 exits must be provided from any storey if egress from that storey involves a vertical rise within the building of more than 1.5 m, unless—

  1. the floor area of the storey is not more than 50 m²; and
  2. the distance of travel from any point on the floor to a single exit is not more than 20 m.

(4) Class 9 buildings —

  1. In addition to any horizontal exit, not less than 2 exits must be provided from the following:
    1. Each storey if the building has a rise in storeys of more than 6 or an effective height of more than 25 m.
    2. Any storey which includes a patient care area in a Class 9a health-care building.
    3. Any storey that contains sleeping areas in a Class 9c building.
    4. Any storey used as a Class 9b early childhood centre, or any Class 9b early childhood centre which forms part of a storey.
    5. Each storey in a primary or secondary school with a rise in storeys of 2 or more.
    6. Any storey or mezzanine that accommodates more than 50 persons, calculated under D2D18.
  2. The requirements of (a) do not apply to a part of a storey that—
    1. is a plant room, machinery room, storeroom, lift-machine room or the like; and
    2. is provided with direct egress to a road, open space or a fire-isolated exit complying with D2D12(2); and
    3. satisfies D2D5 by the provision of 1 exit.

NSW D2D3 Number of exits required2019: D1.2

Delete subclause D2D3(4) and insert D2D3(4) as follows:

(4) Class 9 buildings—

  1. In addition to any horizontal exit, not less than 2 exits must be provided from the following:
    1. Each storey if the building has a rise in storeys of more than 6 or an effective height of more than 25 m.
    2. Any storey which includes a patient care area in a Class 9a health-care building.
    3. Any storey that contains sleeping areas in a Class 9c building.
    4. Any storey used as a Class 9b early childhood centre, or any Class 9b early childhood centre which forms part of a storey.
    5. Each storey in a primary or secondary school with a rise in storeys of 2 or more.
    6. Any storey or mezzanine that accommodates more than 50 persons, calculated under D2D18.
    7. Any storey or mezzanine within an auditorium in an entertainment venue.
  2. The requirements of (a) do not apply to a part of a storey that—
    1. is a plant room, machinery room, storeroom, lift-machine room or the like; and
    2. is provided with direct egress to a road, open space or a fire-isolated exit complying with D2D12(2); and
    3. satisfies D2D5 by the provision of 1 exit.

(5) Exits from Class 9c buildings and patient care areas in Class 9a health-care buildings — In a Class 9a health-care building and a Class 9c building, at least one exit must be provided from every part of a storey which has been divided into fire compartments in accordance with C3D3 or C3D6.

(6) Exits in open spectator stands — In an open spectator stand containing more than one tier of seating, every tier must have not less than 2 stairways or ramps, each forming part of the path of travel to not less than 2 exits.

(7) Access to exits — Without passing through another sole-occupancy unit every occupant of a storey or part of a storey must have access to—

  1. an exit; or
  2. at least 2 exits if 2 or more exits are required.

To require the provision of sufficient exits to enable safe egress in case of an emergency.

All buildings—D2D3(1)

Under D2D3(1), all buildings must have at least one exit from each storey. The remainder of D2D3 sets out the circumstances in which more than one exit may be required.

Why do some buildings require multiple exits?

The purpose of regulatory control over the number of exits in a building is to maximise the opportunities for people to have egress from the building in an emergency.

Egress from some buildings can be very difficult (for example, particularly tall or large buildings, or even small buildings which have a complex passageway design). It may be necessary to provide several alternative exits.

Horizontal exits

While a number of the D2D3 provisions refer to “horizontal exit”, they do not require the installation of a horizontal exit. Rather, where a horizontal exit exists or is proposed, at least two additional exits must be provided. Where there is no horizontal exit, there must still be at least two exits.

Class 2 to Class 8 buildings—D2D3(2)

The D2D3(2)(a) provision regarding an effective height of 25 metres recognises the effective operating height for fire brigade ladders and other fire-fighting and rescue equipment. Above this height, fire-fighting, rescue and egress problems increase considerably.

D2D3(2)(b)—Class 2 and Class 3 buildings complying with C2D6

C2D6 provides a concession for Class 2 and Class 3 buildings (having a rise in storeys of two), in that if they comply with certain conditions they may be of Type C construction. In order to qualify for that concession such buildings must have at least 2 exits.

This provision recognises that Class 2 and Class 3 buildings constructed in accordance with C2D6 include additional evacuation provisions.

Basements—D2D3(3)

“Basement” is not defined in the BCA. A basement is regarded as a below-ground-level storey not counted in the rise in storeys.

Any basement in excess of the minimum floor area specified in D2D3(3)(a) which has a travel distance to an exit in excess of that specified in D2D3(3)(b), must have at least two exits. The reason for this is that basements present difficulties in terms of egress and fire-fighting. These include:

  • the difficulty in naturally venting smoke from a fire because of the lack of windows; and
  • the need for occupants to evacuate in the direction of smoke travel. This is the opposite to upper storeys, where people would be evacuating downwards and the smoke travelling upwards.
     

All Class 9 buildings

D2D3(4)(a) covers Class 9 buildings with a rise in storeys of more than six (additional to the provisions which apply to Class 2 to Class 8 buildings) and Class 9 buildings with an effective height of more than 25 metres (which is the same as for Class 2 to Class 8 buildings, and recognises the effective operating height for fire brigade ladders and other fire-fighting and rescue equipment).

D2D3(4)(a) recognises the emergency egress requirements for Class 9 buildings. Such buildings could contain large numbers of people who may be unfamiliar with the building’s egress provisions. They might also be confused and in various stages of immobility.

D2D3(4)(a) does not refer to “whichever is the lesser”, nor, for that matter, “whichever is the greater”—meaning that both are applicable.

D2D3(4)(b) provides concession for small rooms, not normally occupied,from which egress is readily achieved.

Additional requirements for some Class 9 buildings

In D2D3(4)(a), and D2D3(5) and (6), the BCA recognises that some Class 9 buildings (patient care areas, aged care buildings, early childhood centres, schools, spectator stands, storeys or mezzanines containing more than 50 people as calculated under D2D18 present difficult evacuation conditions (requiring two exits additional to any horizontal exits) because of such factors as:

  • the age and nature of the occupants;
  • the density of occupation (for example, occupants per m2); and
  • the unfamiliarity of occupants with the emergency evacuation requirements.

Exits must be accessible—D2D3(7)

There is little point requiring exits if they are not accessible at all times. D2D3(7) requires that occupants must be able to access an exit. Where two or more exits are required, at least two exits (allowing for the fact that one of the exits may be made inaccessible by an emergency, such as a fire) should be accessible.

Such access must not be through another sole-occupancy unit because access to the unit may be locked or barred.

(1) Class 2 and 3 buildings — The following applies:

  1. Subject to (b), every stairway or ramp serving as a required exit must be fire-isolated unless it connects, passes through or passes by not more than—
    1. 3 consecutive storeys in a Class 2 building; or
    2. 2 consecutive storeys in a Class 3 building.
  2. Notwithstanding (a), one extra storey of any classification may be included if—
    1. it is only for the accommodation of motor vehicles or for other ancillary purposes; or
    2. the building has a sprinkler system (other than a FPAA101D system) complying with Specification 17 installed throughout; or
    3. the required exit does not provide access to or egress for, and is separated from, the extra storey by construction having—
      1. an FRL of –/60/60, if non-loadbearing; and
      2. an FRL of 90/90/90, if loadbearing; and
      3. no opening that could permit the passage of fire or smoke.

(2) Class 5, 6, 7, 8 or 9 buildings — Every stairway or ramp serving as a required exit must be fire-isolated unless—

  1. in a Class 9a health-care building — it connects, or passes through or passes by not more than 2 consecutive storeys in areas other than patient care areas; or
  2. it is part of an open spectator stand; or
  3. in any other case, except in a Class 9b early childhood centre or a Class 9c building, it connects, passes through or passes by not more than 2 consecutive storeys and one extra storey of any classification may be included if—
    1. the building has a sprinkler system (other than a FPAA101D system) complying with Specification 17 installed throughout; or
    2. the required exit does not provide access to or egress for, and is separated from, the extra storey by construction having—
      1. an FRL of –/60/60, if non-loadbearing; and
      2. an FRL of 90/90/90 for Type A construction or 60/60/60 for Type B or C construction, if loadbearing; and
      3. no opening that could permit the passage of fire or smoke.

SA D2D4 When fire-isolated stairways and ramps are required2019: D1.3

Delete subclause D2D4(2) and insert D2D4(2) as follows:

(2) Class 5, 6, 7, 8 or 9 buildings — Every stairway or ramp serving as a required exit must be fire-isolated unless—

  1. in a Class 9a health-care building — it connects, or passes through or passes by not more than 2 consecutive storeys in areas other than patient care areas; or
  2. it is part of an open spectator stand; or
  3. in any other case except in a Class 9b early childhood centre or a Class 9c building, it connects, passes through or passes by not more than 2 consecutive storeys and one extra storey of any classification may be included if—
    1. the building has a sprinkler system (other than a FPAA101D system) complying with Specification 17 installed throughout; or
    2. the required exit does not provide access to or egress for, and is separated from, the extra storey by construction having—
      1. an FRL of –/60/60, if non-loadbearing; and
      2. an FRL of 90/90/90 for Type A construction or 60/60/60 for Type B or C construction, if loadbearing; and
      3. no opening that could permit the passage of fire or smoke; or
  4. it is a required exit from a bulk grain storage facility and there are no window or door openings within 3 m of the stairway, ramp or ladder.

Exemptions

D2D4(2) does not apply to—

  1. a Class 9b early childhood centre wholly within a storey that provides direct egress to a road or open space; or
  2. a Class 9b early childhood centre with a rise in storeys of not more than 2, where the Class 9b early childhood centre is the only use in that building.

To indicate when fire-isolated stairways and ramps are required to enable safe egress in case of a fire.

D2D4 and D1P5

D2D4 comprises the Deemed-to-Satisfy Provisions for D1P5.

Purpose of fire-isolated exits

Fire-isolated exits are required in multi-storey buildings to enable people to evacuate past a storey on fire. They also help the fire brigade carry out search and rescue and fire-fighting.

Such exits minimise the distance people need to travel in a fire-affected area before accessing a “safe place”, such as a fire-isolated stairway.

Fire-isolated exits may be:

  • fire-isolated stairways;
  • fire-isolated ramps; and
  • fire-isolated passageways connected to fire-isolated stairways or ramps.

D2D4 sets out when stairways and ramps connecting storeys in a building are required to be fire-isolated. This only applies to a stairway or ramp serving as a required exit. Therefore, from the definition of “exit”, D2D4 only applies to those providing egress to a road or open space. Combined with the provisions of D2D3 that exits are required from every storey, a stairway or ramp serving as an exit will generally be connecting storeys. However, the term “exit” could also apply to a stairway or ramp from a basement that exits vertically, directly to a road or open space and thus, does not technically connect storeys.

External stairways

Under certain specified conditions, D2D13 permits the use of external stairways in place of fire-isolated stairways.
D2D4 only applies to stairways that are required exits and therefore does not apply to stairways between split levels of a single storey of a building or those leading from the front door of a building.

Class 2 buildings—D2D4(1)(a)(i)

D2D4(1)(a)(i) permits Class 2 buildings to have non-fire-isolated exits provided they do not connect, pass through or pass by more than three consecutive storeys, plus an extra storey of any classification under specified conditions. The terms “connect”, “pass through” and “pass by” include the following situations:

  • Where the exit provides access to the storey.
  • Where the exit passes through the storey but does not necessarily provide access to or egress for the storey.
  • Where the exit is external to the building, i.e. passes by the storey but does not necessarily provide access to or egress for the storey.

With regard to the allowance for 3 storeys, the BCA assumes that residents of Class 2 buildings tend to be long-term occupants, and aware of their surroundings. This makes them likely to be able to exit quickly without the need for fire- isolated exits.

An extra storey of any classification may be included under certain circumstances where the fire risk associated with the extra storey is low. The circumstances are:

  • where the extra storey is used for a carpark or other ancillary purposes. In Class 2 buildings a carpark usually represents a low fire risk, and is unlikely to have many occupants for any length of time. The inclusion of the extra storey applies when the building only consists of a Class 2 building and a carpark. The building may also include a Class 3 part, however in such a case, the Class 3 portion of the building would control the number of storeys connected by a non-fire-isolated exit (see comments on D2D4(1)(a)(ii)); and
  • where the building contains a sprinkler system. This concession recognises the ability of sprinkler systems to extinguish or contain a fire thereby allowing additional time for occupants to escape; and
  • where the exit is separated from the extra storey by walls having an FRL consistent with those required for a public corridor in a Class 2 or 3 building. By having separating walls with an FRL and by preventing any connection to the extra storey for the purpose of providing access to or egress for that storey, the non-fire-isolated exit is protected from the fire risk associated with the extra storey.

Class 3 buildings—D2D4(1)(a)(ii)

D2D4(1)(a)(ii) permits Class 3 buildings to have non-fire-isolated exits provided they do not connect, pass through or pass by more than two consecutive storeys, plus an extra storey of any classification under specified conditions. The terms “connect”, “pass through” and “pass by” include the following situations:

  • Where the exit provides access to the storey.
  • Where the exit passes through the storey but does not necessarily provide access to or egress for the storey.
  • Where the exit is external to the building, i.e. passes by the storey but does not necessarily provide access to or egress for the storey.

The allowance for two storeys is based on residents of a number of Class 3 buildings being less familiar with the building layout and paths of travel to an exit than residents of a Class 2 building. The differential between Class 2 and Class 3 buildings recognises a higher potential level of risk in Class 3 buildings.

An extra storey of any classification may be included under certain circumstances where the fire risk associated with the extra storey is low. The circumstances are:

  • where the extra storey is used for a carpark or other ancillary purposes. In Class 3 buildings a carpark usually represents a low fire risk, and is unlikely to have many occupants for any length of time. The inclusion of the extra storey applies when the building only consists of a Class 3 building and a carpark. The building may also include a Class 2 part, however in such a case, the Class 3 portion of the building would control the number of storeys connected by a non-fire-isolated exit; and
  • where the building contains a sprinkler system. This concession recognises the ability of sprinkler systems to extinguish or contain a fire; and
  • where the exit is separated from the extra storey by walls having an FRL consistent with those required for a public corridor in a Class 2 or 3 building. By having separating walls with an FRL and by preventing any connection to the extra storey for the purpose of providing access to or egress for that storey, the non-fire-isolated exit is protected from the fire risk associated with the extra storey.
     

Class 9a health-care buildings—D2D4(2)(a)

Under D2D4(2)(a), required exits in Class 9a health-care buildings need to be fire-isolated if they connect, pass through or pass by more than two consecutive storeys, or the areas they connect, pass through or pass by include one or more patient care areas. The terms “connect”, “pass through” and “pass by” include the following situations:

  • Where the exit provides access to the storey
  • Where the exit passes through the storey but does not necessarily provide access to or egress for the storey
  • Where the exit is external to the building, i.e. passes by the storey but does not necessarily provide access to or egress for the storey.

Open spectator stands—D2D4(2)(b)

D2D4(2)(b) allows an exemption for open spectator stands because of their open nature, which means that the build up of smoke is unlikely.

Class 5–9 buildings containing sprinklers—D2D4(2)(c)

D2D4(2)(c) does not apply to:

  • a Class 9a building;
  • certain Class 9b early childhood centres (see below);
  • a Class 9c building; or
  • an open spectator stand.

D2D4(2)(c) permits other Class 5–9 buildings to have non-fire-isolated exits provided they do not connect, pass through or pass by more than two consecutive storeys, plus an extra storey of any classification under specified conditions. The terms “connect”, “pass through” and “pass by” include the following situations:

  • Where the exit provides access to the storey.
  • Where the exit passes through the storey but does not necessarily provide access to or egress for the storey.
  • Where the exit is external to the building, i.e. passes by the storey but does not necessarily provide access to or egress for the storey.

An extra storey of any classification may be included under certain circumstances where the fire risk associated with the extra storey is low. The circumstances are:

  • where the building contains a sprinkler system. This concession recognises the ability of sprinkler systems to extinguish or contain a fire; and
  • where the exit is separated from the extra storey by walls having an FRL consistent with those required for a public corridor in a Class 2 or 3 building. By having separating walls with an FRL and by preventing any connection to the extra storey for the purpose of providing access to or egress for that storey, the non-fire-isolated exit is protected from the fire risk associated with the extra storey.

Class 9b early childhood centres

Where a Class 9b early childhood centre is wholly within a storey that provides direct egress to a road or open space, or where the Class 9b early childhood centre is the only use in a building with a rise in storeys not more than two, then then D4D2(2) does not apply. Accordingly, these Class 9b early childhood centres need not be provided with fire-isolated exits.

(1) Class 2 and 3 buildings —

  1. The entrance doorway of any sole-occupancy unit must be not more than—
    1. 6 m from an exit or from a point from which travel in different directions to 2 exits is available; or
    2. 20 m from a single exit serving the storey at the level of egress to a road or open space; and
  2. no point on the floor of a room which is not in a sole-occupancy unit must be more than 20 m from an exit or from a point at which travel in different directions to 2 exits is available.

(2) Class 4 parts of a building — The entrance doorway to any Class 4 part of a building must be not more than 6 m from an exit or a point from which travel in different directions to 2 exits is available.

(3) Class 5, 6, 7, 8 or 9 buildings — Subject to (4), (5) and (6)—

  1. no point on a floor must be more than 20 m from an exit, or a point from which travel in different directions to 2 exits is available, in which case the maximum distance to one of those exits must not exceed 40 m; and
  2. in a Class 5 or 6 building, the distance to a single exit serving a storey at the level of access to a road or open space may be increased to 30 m.

(4) Class 9a buildings — In a patient care area in a Class 9a building—

  1. no point on the floor must be more than 12 m from a point from which travel in different directions to 2 of the required exits is available; and
  2. the maximum distance to one of those exits must not be more than 30 m from the starting point.

VIC D2D5 Exit travel distances2019: D1.4

Delete subclause D2D5(4) and insert D2D5(4) as follows:

(4) Class 9 buildings — in a patient care area in a Class 9a building and in a children’s service

  1. no point on the floor must be more than 12 m from a point from which travel in different directions to 2 of the required exits is available; and
  2. the maximum distance to one of those exits must not be more than 30 m from the starting point.

(5) Open spectator stands — The distance of travel to an exit in a Class 9b building used as an open spectator stand must be not more than 60 m.

(6) Assembly buildings — In a Class 9b building other than a school or early childhood centre, the distance to one of the exits may be 60 m if—

  1. the path of travel from the room concerned to that exit is through another area which is a corridor, hallway, lobby, ramp or other circulation space; and
  2. the room is smoke-separated from the circulation space by construction having an FRL of not less than 60/60/60 with every doorway in that construction protected by a tight fitting, self-closing, solid-core door not less than 35 mm thick; and
  3. the maximum distance of travel does not exceed 40 m within the room and 20 m from the doorway to the room through the circulation space to the exit.

SA D2D5 Exit travel distances2019: D1.4

Insert SA subclause D2D5(7) in clause D2D5 as follows:

(7) Farm buildings — Notwithstanding (3), in a farm building

  1. no point on the floor must be more than 20 m from an exit, or a point from which travel in different directions to 2 exits is available, in which case the maximum distance to one of those exits must not exceed 60 m; and
  2. in a machinery room, plant-room or the like, the distance to a single exit serving a storey at the level of access to a road or open space may be increased to 30 m.

SA D2D5 Exit travel distances2019: D1.4

Insert SA subclause D2D5(8) in clause D2D5 as follows:

(8) Bulk grain storage facilities — Notwithstanding (3), in a bulk grain storage facility — where required exits are spaced not more than 100 m apart, the travel distance to an exit in a cell type silo or a storage shed is not limited.

To maximise the safety of occupants by enabling them to be close enough to an exit to safely evacuate.

Travel distances

The D2D5 travel distances are based on an assumption of what is considered “reasonable” distances to be travelled by occupants in reaching an exit.

Method of measurement

The travel distances specified in D2D5 are measured in accordance with D2D20.

Class 2 and Class 3 buildings and Class 4 parts—D2D5(1) and (2)

D2D5(1) and (2) require a shorter travel distance, to a single exit, for Class 2 and Class 3 buildings and Class 4 parts than is required for Class 5 to Class 9 buildings.

The distance occupants of sole-occupancy units in Class 2 and Class 3 buildings and Class 4 parts must travel to leave
their unit is not part of the distance specified in D2D5. Accordingly, the permitted distance of travel from the point at which the occupant leaves the unit must take account of the time needed for the occupant to reach that point from within the unit.

Distance of travel must factor in the time occupants need to wake up, become alert to their predicament, and exit in a state of confusion.

This process of becoming alert will inevitably require more time to exit. Therefore, the distance of travel to an exit should be shorter.

Figure D2D5a illustrates various methods of complying with D2D5 for Class 2 and Class 3 buildings and Class 4 parts of buildings.

Class 5 to Class 9 buildings—D2D5(3)(a)

D2D5(3)(a) sets out the maximum travel distance in Class 5–9 buildings. This includes Class 9c buildings, but excludes Class 9a buildings, which must comply with D2D5(4). (See comments on D2D5(4) for the reason Class 9a buildings are treated differently). The additional travel distance allowed in Class 9c buildings recognises the effectiveness of sprinkler systems that must be installed in these buildings.

The distances specified allow people to evacuate in a reasonable time, assuming that they are not asleep.

In case a fire blocks a path of travel, D2D5(3)(a) requires that alternative routes must be available within 20 metres of the starting point, unless it is possible to reach a single exit within 20 m.

The conditional reference in D2D5(3) to sub-clauses (4)(5) and (6) refers to special provisions for particular types of buildings.

Figure D2D5b illustrates various methods of complying with D2D5 for Class 5 to 9 buildings.

Class 5 and Class 6 buildings—D2D5(3)(b)

D2D5(3)(b) provides a concession for Class 5 and Class 6 buildings served by a single exit opening onto a road or open space. The concession only applies to the storey at the level of access to a road or open space.

D2D5(3)(b) uses the phrase “at the level of access to a road or open space”. The term “level” does not require the storey to be physically level or flush with the road or open space to obtain the concession, but simply requires that the storey is at a level from which occupants finally leave the building to reach a road or open space. The concession allows a greater travel distance of 30 m in lieu of 20 m to a single exit on the basis that occupants, including customers of a shop, are:

  • generally aware of their surroundings in these types of buildings which are typically small shops or offices located at or near ground level;
  • familiar with the location of the exit which is typically the main entrance to the shop or office; and
  • familiar with the path of travel to reach the exit thereby allowing a prompt and direct egress from the space.

Small shops and offices at or near ground level also tend to have an open plan layout thereby allowing the exit to be easily sighted to permit safe and speedy egress where the space is located in close proximity to the external ground surface such as a road or open space.

The concession is applicable to a number of cases such as to any Class 5 and 6 parts of a building located in a storey at the level of access to a road or open space even though the storey may be served by more than one exit, subject to that part otherwise complying with D2D5(3)(b).

The concession is also available for Class 5 or 6 parts of a building containing other classifications (refer to A1G1(3)(a)).

The conditional reference in D2D5(3) to sub-clauses (4), (5) and (6) refers to special provisions for particular types of building.

Patient care areas—D2D5(4)

Patient care areas in Class 9a buildings can present particular problems in case of emergency egress. Such areas are likely to be occupied by people who are either fully or partly non-ambulatory, and in many cases confused or incapacitated by drugs and medical and post-operative conditions.

Accordingly, the allowable distance of travel to an exit in the patient care areas of a Class 9a building is less than for Class 5–8 buildings, non-patient care areas of Class 9a buildings, and Class 9b buildings.

D2D5(4) should be read in conjunction with C3D6.

Open spectator stands—D2D5(5)

The construction of an open spectator stand is such that the build up of smoke is unlikely. Greater distances of travel to an exit are therefore permitted.
 
Assembly buildings—D2D5(6)

The concession available for assembly buildings is based on a specific level of fire and smoke separation being provided between the area being evacuated and the circulation space passed through to reach an exit.

To obtain the concession, D2D5(6)(c) limits the distance of travel through the room being evacuated and across the circulation space outside that room to the exit.

 

Figure D2D5a: Distances to exits in Class 2 and Class 3 buildings 

Image
Figure D2D5a: Distances to exits in Class 2 and Class 3 buildings

Figure D2D5b: Distance to exits in Class 5 to Class 9 buildings

Image
Figure D2D5b: Distance to exits in Class 5 to Class 9 buildings
NCC Blurbs

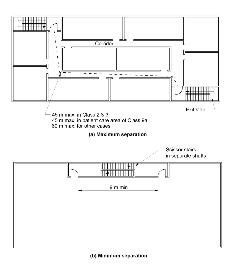
Exits that are required as alternative means of egress must be—

  1. distributed as uniformly as practicable within or around the storey served and in positions where unobstructed access to at least 2 exits is readily available from all points on the floor including lift lobby areas; and
  2. not less than 9 m apart; and
  3. not more than—
    1. in a Class 2 or 3 building — 45 m apart; or
    2. in a Class 9a health-care building, if such required exit serves a patient care area — 45 m apart; or
    3. in all other cases — 60 m apart; and
  4. located so that alternative paths of travel do not converge such that they become less than 6 m apart; and
  5. notwithstanding (c), exits that are required as alternative means of egress in a farm building must not be more than 80 m apart.
NCC Title
Distance between alternative exits
NCC State
SA
NCC Variation Type
Replacement
NCC SPTC Current
Distance between alternative exits

Exits that are required as alternative means of egress must be—

  1. distributed as uniformly as practicable within or around the storey served and in positions where unobstructed access to at least 2 exits is readily available from all points on the floor including lift lobby areas; and
  2. not less than 9 m apart; and
  3. not more than—
    1. in a Class 2 or 3 building — 45 m apart; or
    2. in a Class 9a health-care building, if such required exit serves a patient care area — 45 m apart; or
    3. in all other cases — 60 m apart; and
  4. located so that alternative paths of travel do not converge such that they become less than 6 m apart.

To require that if an exit is inaccessible, access to any required alternative exit must be available within a reasonable distance.

Why is this matter regulated?

Where a building requires multiple exits, the exits maximise the choices of a person evacuating, in case one exit becomes blocked.

Uniform distribution of exits—D2D6(a)

D2D6(a) requires that where multiple exits exist, they must be distributed as uniformly as practicable to improve the level of safety when evacuating.

Minimum and maximum distances are set

D2D6 specifies the minimum and maximum permitted distances between alternative exits (for example, two exits may be located next to one another, so long as they are not each other’s alternative in an emergency). Where scissor stairs are used, the shafts will be adjacent and separated by fire-resisting construction. However, the access doors to the alternative scissor stairs must comply with the minimum separation distance.

Minimum distance—D2D6(b)

The minimum distance minimises the risk of fire spreading to block the alternative exit.

Maximum distance—D2D6(c)

The maximum distance between alternative exits minimises the need to travel too far to reach an exit.

Convergence distance—D2D6(d)

If alternative paths of travel converge too closely, both paths can be blocked by the same fire. The minimum distance between the paths of travel aims to negate this.

The minimum convergence distance only comes into operation when the paths of travel have already diverged to that distance. The paths can commence more closely together than the distance specified.

Method of measurement

The travel distances specified in D2D6 are measured in accordance with D2D20.

Figure D2D6a illustrates the method of measuring the maximum and minimum distances between exits.

Figure D2D6b illustrates the convergence prohibition on alternative paths of travel.

Figure D2D6a: Plan showing method of measuring between exits 

Image
Figure D2D6a: Plan showing method of measuring between exits

Figure D2D6b: Plan showing converging paths of travel

Image
Figure D2D6b: Plan showing converging paths of travel

In a required exit or path of travel to an exit the unobstructed height throughout must be not less than 2 m, except the unobstructed height of any doorway may be reduced to not less than 1980 mm.

To require exits and paths of travel to an exit to have dimensions to allow all occupants to evacuate safely within a reasonable time.

The D2D7 requirement for a minimum unobstructed height of two metres is considered to be a reasonable minimum for most people to safely walk through to gain egress.

D2D7 relates to the unobstructed height between a floor and:

  • a ceiling; or
  • a projection from a ceiling, such as a bulkhead, beam, cable tray, light fitting, pipe, sprinkler head or the like.

It should be noted that in addition to complying with D2D7, exits and paths of travel to exits must comply with the minimum ceiling heights in F5D2.

The reduction to a minimum of 1980 mm for doorways is to allow for a standard door frame.

(1) The unobstructed width of each required exit or path of travel to an exit, except for ladders provided in accordance with D2D21, D3D23 or I3D5, and doorways, must be not less than—

  1. 1 m; or
  2. 1.8 m in a passageway, corridor or ramp normally used for the transportation of patients in beds within a treatment area or ward area; and
  3. in a public corridor in a Class 9c aged care building, notwithstanding (2) and (3)—
    1. 1.5 m; and
    2. 1.8 m for the full width of the doorway, providing access into a sole-occupancy unit or communal bathroom.

(2) If the storey, mezzanine or open spectator stand accommodates more than 100 persons but not more than 200 persons, the aggregate unobstructed width of required exits or paths of travel to an exit, except for doorways, must be not less than—

  1. 1 m plus 250 mm for each 25 persons (or part) in excess of 100; or
  2. 1.8 m in a passageway, corridor or ramp normally used for the transportation of patients in beds within a treatment area or ward area.

(3) If the storey, mezzanine or open spectator stand accommodates more than 200 persons, the aggregate unobstructed width of required exits or paths of travel to an exit, except for doorways, must be not less than—

  1. 2 m plus 500 mm for every 60 persons (or part) in excess of 200 persons if egress involves a change in floor level by a stairway or ramp with a gradient steeper than 1 in 12; or
  2. in any other case, 2 m plus 500 mm for every 75 persons (or part) in excess of 200.

(4) In an open spectator stand which accommodates more than 2000 persons, the aggregate unobstructed width of required exits or paths of travel to an exit, except for doorways, must be not less than 17 m plus a width (in metres) equal to the number in excess of 2000 divided by 600.

NSW D2D8 Width of exits and paths of travel to exits2019: D1.6(b), (c), (d) and (e)

Insert NSW subclause D2D8(5) in clause D2D8 as follows:

(5) In a Class 9b building used as an entertainment venue

  1. the aggregate width must be not less than 2 m plus 500 mm for every 50 persons or part in excess of 200; and
  2. D2D8(1), (2) and (3) do not apply; and
  3. where one or more paths of travel merge, the width of the combined path of travel must be not less than the sum of the required widths of those paths of travel; and
  4. the required widths of those paths of travel connecting the exits from the building to a public road or open space must comply with (c); or

To require exits and paths of travel to an exit to have dimensions to allow all occupants to evacuate safely within a reasonable time.

Width required to allow safe exit

The required exit and path of travel widths have been determined on the basis of an estimate of the width required to allow the safe exit of a given number of people expected in particular buildings.

Exit and path of travel width—D2D8(1)

D2D8(1) clarifies that the unobstructed width of any exit or path of travel to an exit is to not be less than the dimensions prescribed. These may then be added to achieve the aggregate width that is required. Ladders that comply with D2D21, D3D23 or I3D5 does not need to comply with D2D8(1).

D2D8(1)(c) applies to Class 9c buildings. The additional width at doorways is to allow for greater manoeuvrability of beds, mobile baths, wheelchairs, walking frames and other equipment throughout the resident use areas.

Figure D2D8a illustrates two examples of how compliance with the corridor width provisions in a Class 9c building may be achieved.

Storeys accommodating up to 200 people—D2D8(1) and (2)

Buildings, other than ward and treatment areas of a Class 9a building, accommodating up to 200 people (see D2D8(1) and (2)) require minimum widths of:

  • 1 metre for 0 to 100 people;
  • 1.25 metres for 101 to 125 people;
  • 1.5 metres for 126 to 150 people;
  • 1.75 metres for 151 to 175 people; and
  • 2 metres for 176 to 200 people.

See Figure D2D8a.

Storeys accommodating more than 200 people—D2D8(3)

Above 200 people (see D2D8(3)), there is a division between those buildings which have a change of floor level by way of stairways or ramps with a gradient greater than 1 in 12, and those which do not have such a change in floor level. The reason for this differentiation is that the change in floor level has the potential to create problems at exits, which could cause injuries and delays. The difference can be outlined as follows, and is illustrated in Figure D2D8b:

  • Change in floor level by stairway or ramp greater than 1:12—D2D8(3)(a)
    • 2.5 metres for 201 to 260 people;
    • 3 metres for 261 to 320 people;
    • 3.5 metres for 321 to 380 people;
    • and so on.
  • Every other case—D2D8(3)(b)
    • 2.5 metres for 201 to 275 people;
    • 3 metres for 276 to 350 people;
    • 3.5 metres for 351 to 425 people;
    • and so on.

Aggregate width of exit or path of travel—D2D8(2), (3) and (4)

D2D8(2)(3) and (4) refer to the required width of an exit or path of travel to an exit in terms of an “aggregate unobstructed width”. The exit or path may be less than the total required width (although each must achieve the minimum required width), but when the width of each exit or path is added together, the specified aggregate unobstructed width must be achieved.

See Figure D2D8b

Exceptions to the exit and path of travel width

The following exceptions apply:

  • Treatment areas, ward areas: D2D8(1)(b) and (2)(b) specify additional width requirements for the exit and path of travel to allow for the turning circle of beds.
  • Open spectator stand: D2D8(4) provides an exception for large open spectator stands to the exit and path of travel width required for other buildings.


Figure D2D8a: Method of measuring corridor width in a Class 9c building 

Image
Figure D2D8a: Method of measuring corridor width in a Class 9c building

Figure D2D8b: Graph showing required exit widths

Image
Figure D2D8b: Graph showing required exit widths
NCC Blurbs

In a required exit or path of travel to an exit, the unobstructed width of a doorway must be not less than—

  1. in patient care areas through which patients would normally be transported in beds—
    1. if the doorway provides access to, or from, a corridor of width—
      1. less than 2.2 m — 1200 mm; or
      2. 2.2 m or greater — 1070 mm; and
    2. where the doorway referred to in (i) is fitted with two leaves and one leaf is secured in the closed position in accordance with D3D26(3)(e), the other leaf must permit an unobstructed opening not less than 800 mm wide; or
  2. in patient care areas in a horizontal exit — 1250 mm; or
  3. the unobstructed width of each exit provided to comply with D2D8(1), (2), (3) or (4), minus 250 mm; or
  4. in any other case except where it opens to a sanitary compartment or bathroom — 750 mm wide.
NCC Title
Width of doorways in exits or paths of travel to exits
NCC State
VIC
NCC Variation Type
Replacement
NCC SPTC Current
Width of doorways in exits or paths of travel to exits
NCC Blurbs

In a required exit or path of travel to an exit, the unobstructed width of a doorway must be not less than—

  1. in patient care areas through which patients would normally be transported in beds—
    1. if the doorway provides access to, or from, a corridor of width—
      1. less than 2.2 m — 1200 mm; or
      2. 2.2 m or greater — 1070 mm; and
    2. where the doorway referred to in (i) is fitted with two leaves and one leaf is secured in the closed position in accordance with D3D26(3)(e), the other leaf must permit an unobstructed opening not less than 800 mm wide; or
  2. in patient care areas in a horizontal exit — 1250 mm; or
  3. the unobstructed width of each exit provided to comply with D2D8(1), (2), (3) or (4), minus 250 mm; or
  4. in a Class 9c building, 800 mm, except—
    1. in resident use areas the minimum unobstructed width must be 870 mm; and
    2. for doorways leading from a public corridor to a sole-occupancy unit the minimum unobstructed width must be 1070 mm; and
    3. where the doorway is fitted with two leaves and one leaf is secured in the closed position in accordance with D3D26(3)(e), the other leaf must permit an unobstructed opening not less than 870 mm wide in resident use areas and 800 mm wide in non-resident use areas; or
  5. in a Class 9b building used as an entertainment venue
    1. in parts of the building used by the public, the width of the required exit or path of travel, and the unobstructed width of each doorway must not be less than 1 m and not more than 3 m; and
    2. in other parts of the building, doorways must comply with NSW D2D9; or
  6. in any other case except where it opens to a sanitary compartment or bathroom — 750 mm wide.
NCC Title
Width of doorways in exits or paths of travel to exits
NCC State
NSW
NCC Variation Type
Replacement
NCC SPTC Current
Width of doorways in exits or paths of travel to exits

In a required exit or path of travel to an exit, the unobstructed width of a doorway must be not less than—

  1. in patient care areas through which patients would normally be transported in beds—
    1. if the doorway provides access to, or from, a corridor of width—
      1. less than 2.2 m — 1200 mm; or
      2. 2.2 m or greater — 1070 mm; and
    2. where the doorway referred to in (i) is fitted with two leaves and one leaf is secured in the closed position in accordance with D3D26(3)(e), the other leaf must permit an unobstructed opening not less than 800 mm wide; or
  2. in patient care areas in a horizontal exit — 1250 mm; or
  3. the unobstructed width of each exit provided to comply with D2D8, minus 250 mm; or
  4. in a Class 9c building, 800 mm, except—
    1. in resident use areas the minimum unobstructed width must be 870 mm; and
    2. for doorways leading from a public corridor to a sole-occupancy unit the minimum unobstructed width must be 1070 mm; and
    3. where the doorway is fitted with two leaves and one leaf is secured in the closed position in accordance with D3D26(3)(e), the other leaf must permit an unobstructed opening not less than 870 mm wide in resident use areas and 800 mm wide in non-resident use area; or
  5. in any other case except where it opens to a sanitary compartment or bathroom — 750 mm wide.

To require exits and paths of travel to an exit to have dimensions to allow all occupants to evacuate safely within a reasonable time.

Doorway widths—D2D9

The width of a doorway must be clear of all obstructions. This includes door handles or other attachments or any part of the door leaf and any part of the door frame, including the door stop.

Patient care areas—D2D9(a) and (b)

D2D9(a) and (b) provide additional width for doorways in patient care areas to allow for the turning circle of beds, and other egress difficulties, such as those experienced by patients who require ambulatory assistance. D2D9(a) applies to doorways between a patient care area (such as ward bedroom or dining area) and a corridor. 

Width of a doorway—D2D9(c)

The width of a doorway comprising part of the exit or path of travel is permitted to be 250 mm less than the width of each exit. This allows for the installation of a standard door frame.

In the case of an exit comprising multiple doorways, this concession may be applied to each individual doorway.

Figure D2D9 shows alternative examples of the exit door width for a building requiring a total exit width of three metres.

Class 9c buildings—D2D9(d)

D2D9(d) applies to Class 9c buildings. The additional width of doorways is to allow for greater manoeuvrability of beds, mobile baths, wheelchairs, walking frames and other equipment throughout resident use areas.

Minimum permitted width of a doorway—D2D9(e)

No doorway should be less than 750 mm in width, except doorways which open into toilets and bathrooms. However,
minimum width requirements do apply to doorways which provide access to facilities required for people with disabilities (see D4D3 and F2D5).

 

Figure D2D9: Plan showing examples of exit widths for a building requiring an exit width of 3 m

Image
Figure D2D9:	Plan showing examples of exit widths for a building requiring an exit width of 3 m

The unobstructed width of a required exit must not diminish in the direction of travel to a road or open space, except where the width is increased in accordance with D2D8(1)(b) or D2D9(a)(i).

To require exits and paths of travel to an exit to have dimensions to allow all occupants to evacuate safely within a reasonable time.

Under D2D10, the required unobstructed width of exit or path of travel must not be reduced in the direction of egress. This provision aims to avoid congestion in an exit or a path of travel to an exit.

Examples
A restaurant is located on the fifth floor of a building.

The restaurant may seat 250 people. This would require an aggregate exit width of 2.5 metres. One stairway, 2.5 metres in width, is provided to achieve the exit requirement.

The fourth floor of the same building may be used as an office, with 100 staff, requiring an aggregate exit width of only 1 metre.

The 2.5 metre wide stairway from the fifth floor cannot be reduced to 1 metre when it reaches the fourth floor. The stairway must retain its 2.5 metre width throughout its length.

The exit width is not required to increase to 3.5 metres below the 4th floor. The BCA makes the assumption that the occupants of both floors are unlikely to all be exiting through the same part of the stairway at the same time.

If the restaurant was below the office, the stairway could begin at 1 metre in width at the office, but would have to increase to 2.5 metres after it passed the restaurant.

 

For the purposes of D2D7 to D2D10 the following apply:

  1. The required width of a stairway or ramp in a required exit or path of travel to an exit must—
    1. be measured clear of all obstructions such as handrails, projecting parts of barriers and the like; and
    2. extend without interruption, except for ceiling cornices, to a height not less than 2 m vertically above a line along the nosings of the treads or the floor surface of the ramp or landing.
  2. To determine the aggregate unobstructed width, the number of persons accommodated must be calculated according to D2D18.

To require exits and paths of travel to an exit to have dimensions to allow all occupants to evacuate safely within a reasonable time.

Under D2D11(a)(i), the required stairway width must be measured clear of obstructions, including handrails and projecting barriers.

Under D2D11(a)(ii), the required width of a stairway must continue to a height of 2 metres above the stair. This measurement is consistent with other similar BCA requirements.

Figure D2D11 illustrates compliance with D2D11(a).

Figure D2D11: Method of measuring height and width of a stairway

Image
Figure D2D11: Method of measuring height and width of a stairway

(1) A doorway from a room must not open directly into a stairway, passageway or ramp that is required to be fire-isolated unless it is from—

  1. a public corridor, public lobby or the like; or
  2. a sole-occupancy unit occupying all of a storey; or
  3. a sanitary compartment, airlock or the like.

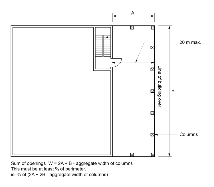
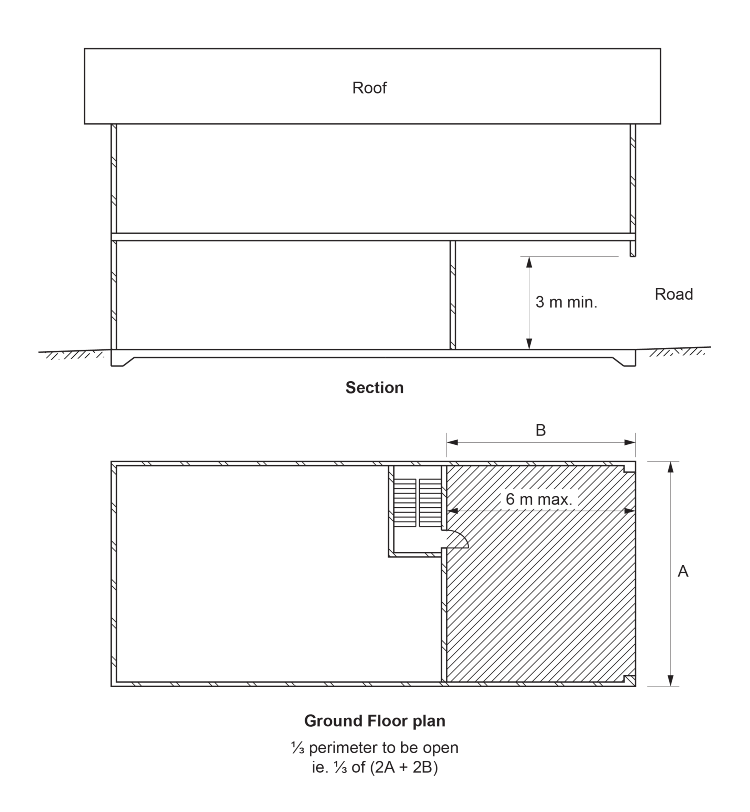
(2) Each fire-isolated stairway or fire-isolated ramp must provide independent egress from each storey served and discharge directly, or by way of its own fire-isolated passageway

  1. to a road or open space; or
  2. to a point—
    1. in a storey or space, within the confines of the building, that is used only for pedestrian movement, car parking or the like and is open for at least ⅔ of its perimeter; and
    2. from which an unimpeded path of travel, not further than 20 m, is available to a road or open space; or
  3. into a covered area that—
    1. adjoins a road or open space; and
    2. is open for at least ⅓ of its perimeter; and
    3. has an unobstructed clear height throughout, including the perimeter openings, of not less than 3 m; and
    4. provides an unimpeded path of travel from the point of discharge to the road or open space of not more than 6 m.

(3) Where a path of travel from the point of discharge of a fire-isolated exit necessitates passing within 6 m of any part of an external wall of the same building, measured horizontally at right angles to the path of travel, the following applies:

  1. That part of the wall must have—
    1. an FRL of not less than 60/60/60; and
    2. any openings protected internally in accordance with C4D5; and
  2. The protection required by (a) must extend for a distance of 3 m above or below, as appropriate, the level of the path of travel, or for the height of the wall, whichever is the lesser.

(4) If more than 2 access doorways, not from a sanitary compartment or the like, open to a required fire-isolated exit in the same storey

  1. a smoke lobby in accordance with D3D7 must be provided; or
  2. the exit must be pressurised in accordance with AS 1668.1.

(5) A ramp must be provided at any change in level less than 600 mm in a fire-isolated passageway in a Class 9 building.

To enable occupants to safely enter a fire-isolated exit which discharges to a safe location.

Access to fire-isolated exits—D2D12(1)

D2D12(1) requires that a doorway must not open into a fire-isolated exit unless it opens from a public area, a sole- occupancy unit which occupies a whole floor, or a toilet. This is to limit the number of entry points into a fire-isolated exit to retain its fire-resisting performance.

Note that D2D12(1)(a) refers to a “public corridor, public lobby, or the like”. A smoke lobby which serves at least two sole- occupancy units is a “public lobby”, and can open directly into a fire-isolated exit. Figure D2D12a illustrates permitted and prohibited entry into a fire-isolated passageway from sole-occupancy units in a shopping centre.

Discharge to areas not roads and open spaces—D2D12(2)

D2D12(2)(a) requires fire-isolated exits to discharge to roads or open spaces. However, there are some exemptions:

D2D12(2)(b) sets out the requirements for a fire-isolated exit to discharge into an area within a building (including the requirement that it be open for at least two thirds of its perimeter, to aid smoke ventilation); and

D2D12(2)(c) sets out the requirements for a fire-isolated exit to discharge into a covered area outside the building (including the requirement that it be open for at least one third of its perimeter, to aid smoke ventilation).

Figure D2D12b and Figure D2D12c illustrate some of the options available by the use of D2D12.

Travel within 6 metres of an external wall—D2D12(3)

D2D12(3) sets out the FRL and opening protection requirements where the path of travel from the point of discharge of a fire-isolated exit to a road or open space necessitates passes within six metres of any part of the external wall of the building being evacuated. The provision only applies at the level of discharge. So if the exit discharges at ground level, any first storey wall or window would not need protection. The reason is that a fire on the first floor is unlikely to affect people exiting one storey below.

Smoke lobby or pressurised system—D2D12(4)

D2D12(4) requires the use of a smoke lobby or a pressurisation system to stop the entry of smoke into the fire-isolated exit, if more than two access doorways described in D2D12(4)(a) or (b) are provided in the same storey. This provision must be read in conjunction with D2D12(1), it does not over-ride it. See Figure D2D12a.

Ramps in Class 9 buildings—D2D12(5)

D2D12(5) requires a ramp where there is any change in level in a fire-isolated passageway in a Class 9 building and that change is less than 600 mm.


Figure D2D12a: Plans showing entry into a fire-isolated passageway in a shopping centre 

Image
Figure D2D12a: Plans showing entry into a fire-isolated passageway in a shopping centre

Figure D2D12b: Example of discharge of fire-isolated stair complying with D2D12(2)(b) 

Image
Figure D2D12b:	Example of discharge of fire-isolated stair complying with D2D12(2)(b)

Figure D2D12c: Example of discharge of fire-isolated stair complying with D2D12(2)(c)

Image
Figure D2D12c: Example of discharge of fire-isolated stair complying with D2D12(2)(c)

Figure D2D12d: Plan showing when walls and windows require protection in accordance with D2D12(3)

Image
Figure D2D12d:	Plan showing when walls and windows require protection in accordance with D2D12(3)

(1) An external stairway or ramp may serve as a required exit in lieu of a fire-isolated exit serving a storey below an effective height of 25 m, if the stairway or ramp is—

  1. non-combustible throughout; and
  2. protected in accordance with (3) if it is within 6 m of, and exposed to, any part of the external wall of the building it serves.

(2) For the purposes of this clause—

  1. exposure under (1)(b), is measured in accordance with S5C2, as if the exit was a building element and the external wall of the building was a fire-source feature to the exit, except that the FRL required in S5C2(1)(a) must not be less than 60/60/60; and
  2. the plane formed at the construction edge or perimeter of an unenclosed building or part such as an open-deck carpark, open spectator stand or the like, is deemed to be an external wall; and
  3. openings in an external wall and openings under (3) and (4), are determined in accordance with C4D2.

(3) The protection referred to in (1)(b), must adequately protect occupants using the exit from exposure to a fire within the building, in accordance with one of the following methods:

  1. The part of the external wall of the building to which the exit is exposed must have—
    1. an FRL of not less than 60/60/60; and
    2. no openings less than 3 m from the exit (except a doorway serving the exit protected by a –/60/30 fire door in accordance with C4D9(1)); and
    3. any opening 3 m or more but less than 6 m from the exit, protected in accordance with C4D5 and if wall wetting sprinklers are used, they are located internally.
  2. The exit must be protected by construction of a wall, roof, floor or other shielding element as appropriate in accordance with (4) from—
    1. any part of the external wall of the building having an FRL of less than 60/60/60; and
    2. any openings in the external wall.

(4) The wall, roof, floor or other shielding element required by (3)(b) must—

  1. have an FRL of not less than 60/60/60; and
  2. have no openings less than 3 m from the external wall of the building (except a doorway serving the exit protected by a –/60/30 fire door in accordance with C4D9(1)); and
  3. have any opening 3 m or more but less than 6 m from any part of the external wall of the building protected in accordance with C4D5 and if wall wetting sprinklers are used, they are located on the side exposed to the external wall.

To detail the circumstances in which an external stairway or ramp can be provided instead of a fire-isolated stairway or fire-isolated ramp.

Alternative to required fire-isolated stairways or ramps

Compliance with D2D13 for external stairway or ramp is only required where the external stairway or ramp is proposed as an alternative to a required fire-isolated stairway or ramp. In other words, if a fire-isolated stairway or ramp is not required by the BCA, compliance is not required with D2D13.

External stairways and ramps permitted to 25 metres

The use of an external stairway or ramp is permitted instead of a fire-isolated stairway or ramp up to a height of 25 metres. The reason external stairways or ramps are not permitted above this height is because of:

  • the risk that people would suffer vertigo above this level;
  • the risk that weather conditions, particularly wind, may become more severe above this height; and
  • the need to enable any person who gets into difficulties on the stairway to be rescued by way of fire brigade ladders or other rescue equipment, which generally do not reach above this height.

Fire protection required

Fire protection from the external wall of the building near the external exit and any openings in that wall, is required under D2D13(1) and (2) to ensure that an average person using the exit is afforded adequate protection from flames and radiant heat from a fire within the building.

D2D13(3) provides two separate methods of protecting the external exit from a fire from within the building:

  • protect the external wall of the building and any openings in the wall, within the prescribed distances to the exit (see Figure D2D13a); or
  • protect the exit by shielding construction where the exit is within the prescribed distances to the building (see Figure D2D13b).

D2D13(4) provides requirements for the shielding construction and protection of any openings in that construction.

Figure D2D13a: Protection of the external exit using the external wall of building in accordance with D2D13(3)(a)

Image
Figure D2D13a: Protection of the external exit using the external wall of building in accordance with D2D13(3)(a)

Figure D2D13b: Protection of the external exit using shielding construction in accordance with D2D13(3)(b)

Image
Figure D2D13b:	Protection of the external exit using shielding construction in accordance with D2D13(3)(b)

(1) A non-fire-isolated stairway or non-fire-isolated ramp serving as a required exit must provide a continuous means of travel by its own flights and landings from every storey served to the level at which egress to a road or open space is provided.

(2) In a Class 2, 3 or 4 building, the distance between the doorway of a room or sole-occupancy unit and the point of egress to a road or open space by way of a stairway or ramp that is not fire-isolated and is required to serve that room or sole-occupancy unit must not exceed—

  1. 30 m in a building of Type C construction; or
  2. 60 m in all other cases.

(3) In a Class 5, 6, 7, 8 or 9 building, the distance from any point on a floor to a point of egress to a road or open space by way of a required non-fire-isolated stairway or non-fire-isolated ramp must not exceed 80 m.

(4) In a Class 2, 3 or 9a building, a required non-fire-isolated stairway or non-fire-isolated ramp must discharge at a point not more than—

  1. 15 m from a doorway providing egress to a road or open space or from a fire-isolated passageway leading to a road or open space; or
  2. 30 m from one of 2 such doorways or passageways if travel to each of them from the non-fire-isolated stairway or non-fire-isolated ramp is in opposite or approximately opposite directions.

(5) In a Class 5 to 8 or 9b building, a required non-fire-isolated stairway or non-fire-isolated ramp must discharge at a point not more than—

  1. 20 m from a doorway providing egress to a road or open space or from a fire-isolated passageway leading to a road or open space; or
  2. 40 m from one of 2 such doorways or passageways if travel to each of them from the non-fire-isolated stairway or non-fire-isolated ramp is in opposite or approximately opposite directions.

(6) In a Class 2 or 3 building, if 2 or more exits are required and are provided by means of internal non-fire-isolated stairways or non-fire-isolated ramps each exit must—

  1. provide separate egress to a road or open space; and
  2. be suitably smoke-separated from each other at the level of discharge.

SA D2D14 Travel by non-fire-isolated stairways or ramps2019: D1.9

Insert SA subclause D2D14(7) in clause D2D14 as follows:

(7) In a bulk grain storage facility, the distance from any point on the floor to a point of egress to a road or open space by way of a non-fire-isolated stairway, non-fire-isolated ramp or ladder is not limited.

To require that a person using a non-fire-isolated stairway or ramp be provided with a safe evacuation path.

Continuous means of travel—D2D14(1)

D2D14(1) requires that occupants in a required non-fire-isolated stairway or ramp are able to continue all the way down to the level from which egress to a road or open space is available.

D2D14(1) refers to a continuous means of travel comprising flights of stairs and landings. It would generally not be acceptable for an entire or substantial proportion of a storey to be called a “landing”.

The first diagram in Figure D2D14a illustrates non-compliance with D2D14(1) because the stair does not provide a continuous path of travel to the level providing egress to a road or open space. The second diagram in Figure D2D14a illustrates a method of compliance with D2D14(1).

Required stairways and ramps

The distances specified in D2D14 apply only to a required non-fire-isolated stairway or ramp. Figure D2D14b illustrates the method of measuring a travel distance down a stairway.

Distances for non-fire-isolated stairways—D2D14(2) and (3)

D2D14(2) and (3) provide requirements for the overall travel distances permitted on non-fire-isolated stairways. Figure D2D14c illustrates compliance with D2D14(2) and (3).

Distance from stairway to discharge point—D2D14(4) and (5)

D2D14(4) and (5) provide requirements for the travel distance permitted from the base of the non-fire-isolated stairway to the discharge point (note that this distance is part of the distances required under D2D14(2) and (3).

Figure D2D14d illustrates compliance with D2D14(4) and (5)

D2D14(6) provides the additional requirements for Class 2 and Class 3 buildings which are required to have 2 or more exits.

Figure D2D14e illustrates one method of an exit system in a Class 5–9 building complying with Section D.

Figure D2D14a: Section showing compliance with D2D14(1)

Image
Figure D2D14a: Section showing compliance with D2D14(1)

Figure D2D14b: Method of measuring travel distance down a stairway

Image
Figure D2D14b: Method of measuring travel distance down a stairway

Figure D2D14c: Method of measuring overall distance of travel via non-fire- isolated stairways

Image
Figure D2D14c: Method of measuring overall distance of travel via non-fire- isolated stairways

Figure D2D14d: Plans showing compliance with D2D14(4) and (5) for the discharge of non-fire-isolated stairways

Image
Figure D2D14d: Plans showing compliance with D2D14(4) and (5) for the discharge of non-fire-isolated stairways

Figure D2D14e: One method of compliance with Section D

Image
Figure D2D14e: One method of compliance with Section D

(1) An exit must not be blocked at the point of discharge and where necessary, suitable barriers must be provided to prevent vehicles from blocking the exit, or access to it.

(2) If a required exit leads to an open space, the path of travel to the road must have an unobstructed width throughout of not less than—

  1. the minimum width of the required exit; or
  2. 1 m,

whichever is the greater.

(3) If an exit discharges to open space that is at a different level than the public road to which it is connected, the path of travel to the road must be by—

  1. a ramp or other incline having a gradient not steeper than 1:8 at any part, or not steeper than 1:14 if required by the Deemed-to-Satisfy Provisions of Part D4; or
  2. except if the exit is from a Class 9a building, a stairway complying with the Deemed-to-Satisfy Provisions of the NCC.

(4) The discharge point of alternative exits must be located as far apart as practical.

(5) In a Class 9b building which is an open spectator stand that accommodates more than 500 persons, a required stairway or required ramp must not discharge to the ground in front of the stand.

(6) In a Class 9b building containing an auditorium which accommodates more than 500 persons, not more than ⅔ of the required width of exits must be located in the main entrance foyer.

NSW D2D15 Discharge from exits2019: D1.10

Delete subclause D2D15(6) and insert D2D15(6) as follows:

(6) In a Class 9b building used as an entertainment venue, at least half of the required number of exits from each storey or mezzanine, and at least half of the aggregate width of such exits must discharge otherwise than through the main entrance, or the area immediately adjacent to the main entrance to the building.

(7) The number of persons accommodated must be calculated according to D2D18.

To require the safe discharge from an exit to a road or open space.

Egress not to be blocked—D2D15(1)

D2D15(1) requires that an exit must not be blocked at the point of discharge.

Barriers (such as bollards) must be installed, if they are necessary to prevent vehicles blocking access to, or discharge from, an exit.

Link between open space and a road—D2D15(2) and (3)

If an exit discharges to an open space, D2D15(2) and (3) require that a safe means of travel be provided from the open space to a road. This means that the following criteria must be satisfied:

  • D2D15(2)—to maximise the safety of people moving towards a road during an evacuation, the width of the path of travel from the open space to the road must be at least that required for the exit (and in no case less than one metre).
  • D2D15(3)—to minimise the risk from falling or tripping, any stairways or ramps must comply with the rest of the BCA (e.g. construction of treads, landings etc). This may include the provision of ramps suitable for people with disabilities.

The link between the road and open space must be open to the sky for its length.

Discharge points to be well separated—D2D15(4)

D2D15(4) requires that the discharge points of alternative exits be as far apart as possible, so that if the discharge from one of them is blocked, the other will still operate satisfactorily.

Open spectator stand—D2D15(5)

D2D15(5) requires that exits from an open spectator stand not discharge to the ground in front of the stand. There may be a large number of people viewing the event from the front of the stand, and they may obstruct the path of those evacuating.

There is also a risk that the front of the stand could be subject to severe heat radiation. Also the only egress to the road from the ground in front of the stand may be through the stand.

Auditorium—D2D15(6)

Under D2D15(6), only two thirds of the required width of exits from an auditorium, such as a theatre or hall, are to discharge into an entrance foyer where the auditorium can accommodate more than 500 people. This restriction applies because there may be a large number of people in the foyer, possibly waiting for the next show, or to gain access to another auditorium. These people would obstruct the path of the people evacuating.

(1) Horizontal exits must not be counted as required exits

  1. between sole-occupancy units; or
  2. in a Class 9b building used as an early childhood centre, primary or secondary school.

(2) In a Class 9a health-care building or Class 9c building, horizontal exits may be counted as required exits if the path of travel from a fire compartment leads by one or more horizontal exits directly into another fire compartment which has at least one required exit which is not a horizontal exit.

(3) In cases other than in (2), horizontal exits must not comprise more than half of the required exits from any part of a storey divided by a fire wall.

(4) Horizontal exits must have a clear area on the side of the fire wall to which occupants are evacuating, to accommodate the total number of persons (calculated under D2D18) served by the horizontal exit of not less than—

  1. 2.5 m2 per patient/resident in a Class 9a health-care building or Class 9c aged care building; and
  2. 0.5 m2 per person in any other case.

(5) Where a fire compartment is provided with only two exits, and one of those exits is a horizontal exit, the clear area required by (4) is to be of a size that accommodates all the occupants from the fire compartment being evacuated.

(6) In a Class 9b early childhood centre, the clear area required by (4) must accommodate all occupants of the early childhood centre.

(7) The clear area required by (4) must be connected to the horizontal exit by an unobstructed path that has at least the dimensions required for the horizontal exit and may include the area of the unobstructed path.

(8) Each fire compartment required by C3D6(2) must be served by not less than 2 horizontal exits, each located not less than 9 m from—

  1. at least one other horizontal exit; and
  2. an exit other than a horizontal exit.

To detail how the installation of horizontal exits in a building is permitted as an alternative to a conventional exit.

Difficult evacuations

Originally, provision was made for horizontal exits between fire compartments because some occupants can have difficulty evacuating, particularly those confined to bed or that have a disability.

Subsequently, it was accepted that horizontal exits would be of value in other buildings, where they could overcome problems associated with large fire compartments, e.g. excessive distances to travel to exits.

Purpose of horizontal exits

The use of horizontal exits can overcome some of the difficulties outlined above, although they need to be used in conjunction with some other form of exit.

In an emergency, the Deemed-to-Satisfy Provisions require that occupants travel for limited distances before they reach a place of safety. A “place of safety”, in the case of horizontal exits, means the connecting fire compartment to which people will flee.

For a horizontal exit to comply with the Deemed-to-Satisfy Provisions of Section D, it must meet the following criteria:

  • The distance of travel to the exit must not exceed that specified elsewhere in the BCA.
  • The protection for a place of safety from its adjoining fire compartment is provided by a fire wall. The fire wall has a fire rating to match the classification of the fire compartments it divides and is expected to withstand a burnout of the respective areas. This provides an appropriate level of safety to people using the horizontal exit as they may have to remain in the place of safety for an extended period before evacuating via other exits.
  • There must be another exit (other than a horizontal exit) from each place of safety entered by way of a horizontal exit. After escaping to the place of safety it should not be necessary to return to the area being evacuated to continue to evacuate from the building. D2D16(3) specifies a limit for the number of horizontal exits in a storey for buildings of other than Class 9a and Class 9c buildings.
  • The place of safety must be large enough to temporarily accommodate the people from the area the horizontal exit is being provided for. It is important to note that if there is only one other exit in the fire compartment then the place of safety is to be large enough to accommodate all the occupants of the fire compartment. This is necessary because if the other exit is blocked then all the occupants will be required to exit through the horizontal exit. This is necessary until vertical evacuation is available. Since this accommodation is only for a short period, the areas specified generally only allow for people to stand. However, the larger areas specified for Class 9a health-care buildings and Class 9c buildings allows for patients or residents on beds to be wheeled through the horizontal exit to be accommodated in the place of safety.
  • The path to the place of safety is to have dimensions equal to those of the horizontal exit to assist with the smooth evacuation of occupants.
  • The swing of the horizontal exit door must be the same as other exit doors. This means that if the area is more than 200 m2 (as specified in D3D25(1)(b)), the door is to swing in the direction of egress. If the FRL of the fire wall is three or four hours, two fire doors may be provided to achieve this FRL. In such cases, for both doors to swing in the one direction, a vestibule must be formed, as shown in Figure D2D16.
  • For a Class 9b early childhood centre, the clear area required by D2D16(4) must be large enough to accommodate all occupants of that storey of the early childhood centre. 
  • To make sure that evacuation is always possible, it is not permitted to have a horizontal exit to a separate sole- occupancy unit. This is because the owner or occupier of the other unit may lock the door for security reasons, barring entry (or exit) in an emergency.
  • Where egress is required in either direction, two doors swinging in opposite directions or a 180° swinging door (complying with all BCA requirements including fire and smoke sealing capacities) may be used.

Other uses of horizontal exits

Horizontal exits may be useful as a means of evacuation from many health-care buildings. They can also be an advantage in large floor area buildings which need to be sub-divided by fire walls to reduce the size of the fire compartments. These fire walls can then be penetrated to create horizontal exits.


Figure D2D16: Plan showing doors forming a horizontal exit in a fire wall in accordance with D2D16

Image
Figure D2D16: Plan showing doors forming a horizontal exit in a fire wall in accordance with D2D16

An escalator, moving walkway or non-required non fire-isolated stairway or pedestrian ramp—

  1. must not be used between storeys in—
    1. a patient care area in a Class 9a health-care building; or
    2. a resident use area in a Class 9c building; and
  2. may connect any number of storeys if it is—
    1. in an open spectator stand or indoor sports stadium; or
    2. in a carpark or an atrium; or
    3. outside a building; or
    4. in a Class 5 or 6 building that is sprinklered throughout, where the escalator, walkway, stairway or ramp complies with Specification 14; and
  3. except where permitted in (b) must not connect more than—
    1. 3 storeys if—
      1. each of those storeys is provided with a sprinkler system (other than a FPAA101D system) complying with Specification 17 throughout; and
      2. at least one of those storeys is situated at a level at which there is a direct egress to a road or open space; or
    2. 2 storeys, provided that those storeys are consecutive, and one of the storeys is situated at a level at which there is direct egress to a road or open space; and
  4. except where permitted in (b) or (c), must not connect, directly or indirectly, more than 2 storeys at any level in a Class 5, 6, 7, 8 or 9 building and those storeys must be consecutive.

To limit the spread of fire and smoke through unprotected openings for stairways, ramps, escalators and moving walkways.

Application

D2D17 only applies to:

  • escalators;
  • moving walkways and travelators;
  • non-required non-fire-isolated stairways; and
  • non-required non-fire-isolated pedestrian ramps.

What is a non-required non-fire-isolated stairway or ramp?

Builders etc may choose to interconnect two or three storeys of a building with a non-required stairway, ramp or the like in accordance with D2D17.

Examples
A two storey shop or suite of offices may be within a multi-storey building where all storeys are connected by a stairway which is both required and fire-isolated. This stairway may be external to the sole-occupancy unit which comprises the shop or office suite. For easy access within the sole-occupancy unit, another stairway may be located within the shop or office suite interconnecting the two storeys. That stairway is additional to the required stairway, and is not required to be fire-isolated.

Patient care and resident use area—D2D17(a)

D2D17(a) prohibits the use of a non-required non-fire-isolated stairway or ramp in a patient care area of a Class 9a building and a resident use area of a Class 9c building. The prohibition is because of the difficulties in evacuating bed-ridden, or otherwise mobility-impaired occupants. This prohibition applies to D2D17(d), despite that provision’s general reference to Class 9 buildings.

D2D17(b) allows any number of storeys to be connected in certain buildings as follows:

  • The open nature of the construction of an open spectator stand, sports stadium, carpark, atrium, and a stairway or ramp located outside a building is such that the build-up of smoke is unlikely. D2D17(b)(i)(ii) and (iii) permit any number of interconnected floors in such cases.
  • In a Class 5 or Class 6 building containing a sprinkler system, D2D17(b)(iv) allows connection of any number of storeys if the interconnecting stairway, ramp, or escalator and the like complies with Specification 14.

Atriums and Part G3—D2D17(b)(ii)

While D2D17(b)(ii) refers to atriums, there are additional requirements for atriums in Part G3.

Number of interconnected storeys is restricted—D2D17(c) and (d)

D2D17 restricts the number of storeys which can be interconnected by a non-required non-fire-isolated stairway, ramp or the like. This recognises that an unprotected opening for a stairway, ramp, escalator or the like can lead to the spread of fire or smoke from one floor to another.

The restriction applies if:

  • D2D17(c)(i)—a Class 2–9b building (excluding Class 9a) contains a sprinkler system (other than a FPAA101D system), no more than three consecutive storeys can be linked, one of which storeys must directly egress to a road or open space. This recognises the effectiveness of a sprinkler system in controlling the spread of fire;
  • D2D17(c)(ii)—the building is an unsprinklered Class 2 or Class 3 building, two consecutive storeys can be linked, one of which must directly egress to a road or open space. Part D2 does not generally apply to sole-occupancy units in Class 2 or Class 3 buildings, or Class 4 parts, and there is no restriction on an internal non-required non-fire-isolated stairway, ramp or the like linking two storeys in, for example, a two storey penthouse suite; or
  • D2D17(d)—in a Class 5 or Class 6 building which does not qualify under D2D17(b)(iv), and in Class 7–9b buildings (excluding a patient care area in a Class 9a and a resident use area in a Class 9c, see D2D17(a)), two consecutive storeys can be linked.

Neither storey is required to provide direct egress to a road or open space and there is no requirement for a sprinkler system as part of this provision. As the stairway or ramp is not required by the BCA for emergency evacuation purposes, this provision is in accord with the remainder of the BCA.

 

For the purposes of the Deemed-to-Satisfy Provisions, the number of persons accommodated in a storey, room or mezzanine must be determined with consideration to the purpose for which it is used and the layout of the floor area by—

  1. calculating the sum of the numbers obtained by dividing the floor area of each part of the storey by the number of square metres per person listed in Table D2D18 according to the use of that part, excluding spaces set aside for—
    1. lifts, stairways, ramps and escalators, corridors, hallways, lobbies and the like; and
    2. service ducts and the like, sanitary compartments or other ancillary uses; or
  2. reference to the seating capacity in an assembly building or room; or
  3. any other suitable means of assessing its capacity.
Table D2D18 Area per person according to use
Type of use Area per person
Art gallery, exhibition area, museum 4 m2
Bar — standing 0.5m2
Bar — other 1 m2
Board room 2 m2
Boarding house 15 m2
Cafe, church, dining room 1 m2
Carpark 30 m2
Computer room 25 m2
Court room — judicial area 10 m2
Court room — public seating 1 m2
Dance floor 0.5 m2
Dormitory 5 m2
Early childhood centre 4 m2
Factory — machine shop, fitting shop or like place for cutting, grading, finishing or fitting of metals or glass, except in the fabrication of structural steelwork or manufacture of vehicles or bulky products 5 m2
Factory — areas used for fabrication and processing other than a machine shop, fitting shop or the like. 50 m2
Factory — a space in which the layout and natural use of fixed plant or equipment determines the number of persons who will occupy the space during working hours Area per person determined by the use of the plant or equipment
Gymnasium 3 m2
Hostel, hotel, motel, guest house 15 m2
Indoor sports stadium—arena 10 m2
Kiosk 1 m2
Kitchen, laboratory, laundry 10 m2
Library — reading space 2 m2
Library — storage space 30 m2
Office, including one for typewriting or document copying 10 m2
Patient care areas 10 m2
Plant room — ventilation, electrical or other service units 30 m2
Plant room — boilers or power plant 50 m2
Reading room 2 m2
Restaurant 1 m2
School — general classroom 2 m2
School — multi-purpose hall 1 m2
School — staff room 10 m2
School — trade and practical area — primary 4 m2
School — trade and practical area — secondary As for workshop
Shop — space for sale of goods — at a level entered direct from the open air or any lower level 3 m2
Shop — space for sale of goods — all other levels 5 m2
Showroom — display area, covered mall or arcade 5 m2
Skating rink, based on rink area 1.5 m2
Spectator stand, audience viewing area — standing viewing area 0.3 m2
Spectator stand, audience viewing area — removable seating 1 m2
Spectator stand, audience viewing area — fixed seating Per number of seats
Spectator stand, audience viewing area — bench seating 450 mm/person
Storage space 30 m2
Swimming pool, based on pool area 1.5 m2
Switch room, transformer room 30 m2
Telephone exchange — private 30 m2
Theatre and public hall 1 m2
Theatre dressing room 4 m2
Transport terminal 2 m2
Workshop — for maintenance staff 30 m2
Workshop — for manufacturing processes As for factory
Table Notes

Bar standing is an area used by the standing patrons and extends not less than 1.5 m wide from the outside edge of the bar top for the length of the serving area of the bar.

Delete table (D2D18) and insert NSW table (D2D18) as follows:
NSW Table D2D18: Area per person according to use
Type of use Area per person
Art gallery, exhibition area, museum 4 m2
Auditorium — bench seating 450 mm/person
Auditorium — fixed seating count seats
Auditorium — removable seating 1 m2
Auditorium — standing area 0.5 m2
Bar — standing 0.5m2
Bar — other 1 m2
Board room 2 m2
Boarding house 15 m2
Cafe, church, dining room 1 m2
Carpark 30 m2
Computer room 25 m2
Court room — judicial area 10 m2
Court room — public seating 1 m2
Dance floor 0.5 m2
Dormitory 5 m2
Early childhood centre 4 m2
Entertainment venue — other than auditorium 1.2 m2
Factory — machine shop, fitting shop or like place for cutting, grading, finishing or fitting of metals or glass, except in the fabrication of structural steelwork or manufacture of vehicles or bulky products 5 m2
Factory — areas used for fabrication and processing other than a machine shop, fitting shop or the like 50 m2
Factory — a space in which the layout and natural use of fixed plant or equipment determines the number of persons who will occupy the space during working hours Area per person determined by the use of the plant or equipment
Gymnasium 3 m2
Hostel, hotel, motel, guest house 15 m2
Indoor sports stadium—arena 10 m2
Kiosk 1 m2
Kitchen, laboratory, laundry 10 m2
Library — reading space 2 m2
Library — storage space 30 m2
Office, including one for typewriting or document copying 10 m2
Patient care areas 10 m2
Plant room —ventilation, electrical or other service units 30 m2
Plant room — boilers or power plant 50 m2
Reading room 2 m2
Restaurant 1 m2
School — general classroom 2 m2
School — multi-purpose hall 1 m2
School — staff room 10 m2
School — trade and practical area — primary 4 m2
School — trade and practical area — secondary As for workshop
Shop — space for sale of goods — at a level entered direct from the open air or any lower level 3 m2
Shop — space for sale of goods — all other levels 5 m2
Showroom — display area, covered mall or arcade 5 m2
Skating rink, based on rink area 1.5 m2
Small live music or arts venue – dance floor 0.5 m2
Small live music or arts venueInformation and education facility 4 m2
Small live music or arts venue – other 1 m2
Spectator stand, audience viewing area — standing viewing area 0.3 m2
Spectator stand, audience viewing area — removable seating 1 m2
Spectator stand, audience viewing area — fixed seating Per number of seats
Spectator stand, audience viewing area — bench seating 450 mm/person
Storage space 30 m2
Swimming pool, based on pool area 1.5 m2
Switch room, transformer room 30 m2
Telephone exchange — private 30 m2
Theatre dressing room 4 m2
Transport terminal 2 m2
Workshop — for maintenance staff 30 m2
Workshop — for manufacturing processes As for factory
Note

Bar standing is an area used by the standing patrons and extends not less than 1.5 m wide from the outside edge of the bar top for the length of the serving area of the bar.

To establish a methodology for calculating Deemed-to-Satisfy building populations which are deemed acceptable for use in the design and checking of applications when more accurate figures are not available.

D2D18 Table D2D18 are used to calculate the anticipated number of people in particular types of building.

From these calculations, a number of BCA requirements can be determined within Sections D, E, F and J. The likely number of persons accommodated can affect determinations in relation to a number of matters in the BCA including; exit requirements, hearing augmentation, limitation of the use of stairway platform lifts, sanitary facilities, ceiling heights and the energy efficiency of mechanical ventilation systems.

D2D18 not to be used for non-BCA purposes

D2D18 and Table D2D18 are only intended for the purposes of determining BCA requirements which depend on the number of occupants likely to occupy a building or storey. D2D18 and Table D2D18 are not intended to restrict the number of occupants using a building, or to enforce any building use or licensing requirements.

Use of Table D2D18

If more accurate information is available on the expected population of a building, it should be used in preference to Table D2D18. This information may include:

  • D2D18(b)—if the building is an assembly building or room, its seating capacity can be used; or
  • D2D18(c)—where there is limited public access, a statement from the building owner as to the number of occupants who will use the building; or
  • D2D18(c)—a study of the number of people using similar buildings. Such a study must include the number of people at various times. As an example, if the building is to be used as a shop, the figures must include the maximum numbers of people expected at peak times (such as before Christmas).   
     

Examples

It would be appropriate to use an alternative means of assessing the number of occupants when:

  • under D2D18, a restaurant is deemed to accommodate one person for every square metre of floor area;
  • if a specific restaurant has fixed tables, booths, dining alcoves and architectural features which occupy significant floor space, the actual number of patrons able to be accommodated may be much less than the number calculated using D2D18; and
  • in such a case, it may be appropriate to use another method for calculating the number of people accommodated (such as counting the number of seats available for use by patrons), and hence calculating the total width of exits to be provided; however
  • if such an approach is adopted, due allowance must be made for the employees, as well as the potential for alternative seating layouts which could increase the number of people in the restaurant.


The area per person contained in Table D2D18 for computer rooms applies to rooms housing computer infrastructure such as computer servers and where low occupant numbers occur. These circumstances are similar to those found in switch or transformer rooms. For computer training rooms and office areas containing computers, the area per person for an office or school classroom, as appropriate, should be used.

The nearest part of an exit means in the case of—

  1. a fire-isolated stairway, fire-isolated passageway, or fire-isolated ramp, the nearest part of the doorway providing access to them; and
  2. a non-fire-isolated stairway, the nearest part of the nearest riser; and
  3. a non-fire-isolated ramp, the nearest part of the junction of the floor of the ramp and the floor of the storey; and
  4. a doorway opening to a road or open space, the nearest part of the doorway; and
  5. a horizontal exit, the nearest part of the doorway.

To identify the nearest part of an exit for the purposes of measuring travel distance.

Why is this important?

D2D19 describes the point at which an exit has commenced with respect to both fire-isolated and non-fire-isolated exits. Figure D2D20a and Figure D2D20b illustrate methods of measuring the distance of travel specified in the BCA.

The following rules apply:

  1. In the case of a room that is not a sole-occupancy unit in a Class 2 or 3 building or Class 4 part of a building, the distance includes the straight-line measurement from any point on the floor of the room to the nearest part of a doorway leading from it, together with the distance from that part of the doorway to the single required exit or point from which travel in different directions to 2 required exits is available.
  2. Subject to (d), the distance from the doorway of a sole-occupancy unit in a Class 2 or 3 building or a Class 4 part of a building is measured in a straight line to the nearest part of the required single exit or point from which travel in different directions to 2 required exits is available.
  3. Subject to (d), the distance between exits is measured in a straight line between the nearest parts of those exits.
  4. Only the shortest distance is taken along a corridor, hallway, external balcony or other path of travel that curves or changes direction.
  5. If more than one corridor, hallway, or other internal path of travel connects required exits, for the purposes of D2D6(c) the measurement is along the path of travel through the point at which travel in different directions to those exits is available, as determined in accordance with D2D5.
  6. If a wall (including a demountable internal wall) that does not bound a room, corridor, hallway or the like causes a change of direction in proceeding to a required exit, the distance is measured along the path of travel past that wall.
  7. If permanent fixed seating is provided, the distance is measured along the path of travel between the rows of seats.
  8. In the case of a non-fire-isolated stairway or non-fire-isolated ramp, the distance is measured along a line connecting the nosings of the treads, or along the slope of the ramp, together with the distance connecting those lines across any intermediate landings.

To specify the method of measuring the distance of travel to an exit in various situations.

Path a person would walk

The distance of travel to an exit is measured by determining the path a person would walk from the most remote area of the building to the nearest exit.

The maximum distance of travel between required alternative exits is measured by determining the path a person would travel along in a case where a fire blocks the path of travel to the nearest exit. The path of travel to the alternative exit includes passing through the point at which travel in different directions to those exits is available.

Measure around any built obstructions

It is necessary to measure around any walls, or other built obstructions (including a wall, a demountable wall, and permanent fixed seating). See D2D20(f) and (g).

Furnishings do not need to be taken into account

Generally, furniture, cars in a carpark and some non-built or non-fixed obstructions are not taken into account in the calculation of travel distance. However, there may be occasions when such matters must be taken into account.

Figure D2D20b illustrates, by example, the method of measuring the distance of travel for Class 2 and Class 3 buildings and Class 4 parts.

Figure D2D20c illustrates, by example, the method of measuring the distance of travel for Class 5–9 buildings.

Figure D2D20a: Plan showing measurement of maximum distance of travel between required alternative exits

Image
Figure D2D20a: Plan showing measurement of maximum distance of travel between required alternative exits

Figure D2D20b: Plan showing one method of compliance with Section D for Class 2 and Class 3 buildings and Class 4 parts

Image
Figure D2D20b: Plan showing one method of compliance with Section D for Class 2 and Class 3 buildings and Class 4 parts

Figure D2D20c: Plan showing one method of compliance with D2D20 for Class 5–9 buildings

Image
Figure D2D20c: Plan showing one method of compliance with D2D20 for Class 5–9 buildings

(1) A ladder may be used in lieu of a stairway to provide egress from—

  1. a plant room with a floor area of not more than 100 m2; or
  2. all but one point of egress from a plant room, a lift machine room or a Class 8 electricity network substation with a floor area of not more than 200 m2.

(2) A ladder permitted under (1)—

  1. may—
    1. form part of an exit provided that in the case of a fire-isolated stairway it is contained within the shaft; or
    2. discharge within a storey in which case it must be considered as forming part of the path of travel; and
  2. for a plant room or a Class 8 electricity network substation, must comply with AS 1657; and
  3. for a lift machine room, where access is provided from within a machine room to a secondary floor, a fixed rung type ladder complying with AS 1657 may be used, provided that—
    1. the height between the floors is not more than 2800 mm; and
    2. the ladder is inclined at an angle to the horizontal not less than 65 degrees nor more than 75 degrees; and
    3. the distance between the front face of the ladder and any adjacent obstruction is not less than—
      1. 960 mm, where the ladder is inclined 65 degrees to the horizontal; or
      2. 760 mm, where the ladder is inclined 75 degrees to the horizontal; or
      3. a distance that is determined by interpolating the values in (A) and (B), where the ladder is inclined at any angle between 65 degrees and 75 degrees to the horizontal; and
    4. a clear space not less than 600 mm exists between the foot of the ladder and any equipment.

SA D2D21 Plant rooms, lift machine rooms and electricity network substations: Concession2019: D1.16

Insert SA subclause D2D21(3) in clause D2D21 as follows:

(3) In a bulk grain storage facility, a stair or ladder complying with AS 1657 may be used as an alternative means of egress from a cell type silo.

To provide concessions for small plant rooms, lift motor rooms and Class 8 electricity network substations.

Why are concessions made?

Concessions (such as the use of a ladder in lieu of a stairway) are granted for small plant rooms, lift motor rooms and Class 8 electricity network substations for the following reasons:

  • the usual occupants of a small plant room, lift motor room or Class 8 electricity network substation are trained personnel familiar with the room’s hazards and layout and are capable of negotiating the service ladders in a safe manner;
  • it is reasonable to assume that if the plant or lift motor room is small, so also will be the number of people who will ever occupy it;
  • the small size of the room means that there is not a significant distance to travel to gain egress; and
  • in the larger rooms which qualify for this concession, and multiple exits are provided, only one needs to be a stair.

Figure D2D21 illustrates some possible methods of using the concessions contained in D2D21.

Figure D2D21: Plans showing use of D2D21

Image
Figure D2D21: Plans showing use of D2D21

Access to lift pits must—

  1. where the pit depth is not more than 3 m, be through the lowest landing doors; or
  2. where the pit depth is more than 3 m, be provided through an access doorway complying with the following:
    1. In lieu of D2D7 to D2D11, the doorway must be level with the pit floor and not be less than 600 mm wide by 1980 mm high clear opening, which may be reduced to 1500 mm where it is necessary to comply with (ii).
    2. No part of the lift car or platform must encroach on the pit doorway entrance when the car is on a fully compressed buffer.
    3. Access to the doorway must be by a stairway complying with AS 1657.
    4. In lieu of D3D26, doors fitted to the doorway must be—
      1. of the horizontal sliding or outwards opening hinged type; and
      2. self-closing and self-locking from the outside; and
      3. marked on the landing side with the letters not less than 35 mm high:
        DANGER LIFTWELL – ENTRY OF UNAUTHORIZED PERSONS PROHIBITED – KEEP CLEAR AT ALL TIMES

To provide the requirements for access to lift pits.

D2D22 provides the requirements to access lift pits for maintenance purposes and to restrict access.

(1) Every part of a Class 9b primary school must be wholly within a storey that provides direct egress to a road or open space.

(2) The requirements of (1) do not apply to a building with a rise in storeys of 4 or less, where the primary school is the only use in that building.

Applications

  1. For D2D23(1), a primary school includes classrooms, offices, staffrooms, halls, canteens and the like within the primary school.
  2. For D2D23(2), a primary school includes classrooms, offices, staffrooms, halls, canteens, carparks, end of trip facilities and the like provided solely for the primary school, or school which incorporates the primary school.

Explanatory information

D2D23(1) recognises the difficulties associated with evacuation of primary schools. Should a primary school be proposed within a storey that does not meet the requirements of D2D23, a Performance Solution is to be used to demonstrate compliance with the relevant Performance Requirements.

To limit the height of primary schools subject to Deemed-to-Satsify Provisions relating to egress.

D2D23 limits the application of egress Deemed-to-Satisfy Provisons to primary schools with a rise in storeys of 4 or less. Accordingly, if a primary school is proposed that does not conform to the limitations of D2D23, then a Performance Solution is necessary. This clause is provided in recognition of the difficulty in evacuating a primary school.